I Want to see
Avon Modular Homes
Mike Masten
Tel: 585-245-3990
mike@avonmodularhomes.com
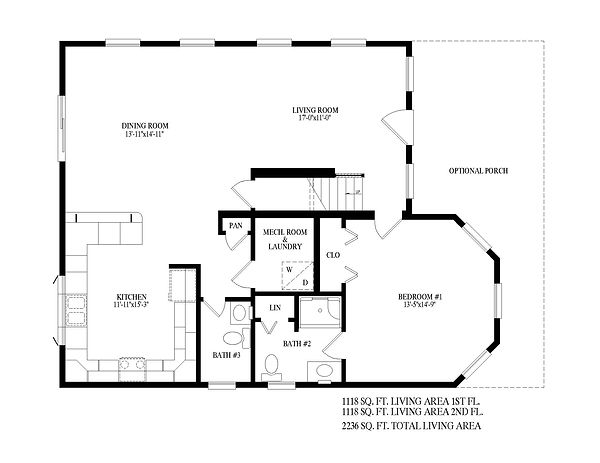
4 Bedrooms, 2 Baths - 2,236 square feet